TOP >  売土地 - 条件から検索 >  物件一覧 >  鯖江市水落町1丁目 鯖江市水落町 売り土地 一括

売土地 鯖江市水落町1丁目 鯖江市水落町 売り土地 一括

POINT
交通量多く好立地
管理番号 0346-002474
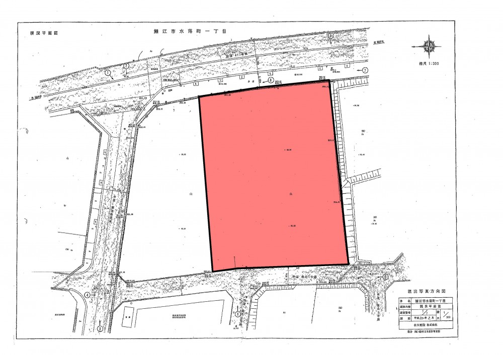
所在地 鯖江市水落町1丁目 132-2 (MAP
土地面積 2213.5㎡(669.58坪)
  • 上水道
  • 下水道
  • 側溝
  • 角地
  • 南道路
  • 閑静な住宅街
  • 分割可
  • 建築条件付
  • 整形地
  • 更地
価格 66,958,000

※所得税、固定資産税、登記費用、保険料等は含まれておりません

私道負担(年額) -
仲介手数料(税込) 2,275,614
初期費用合計 2,275,614
都市計画区域 非線引き都市計画区域
取引態様 仲介
用途地域 第一種住居地域
学校区 神明小学校 / 中央中学校
建ぺい率 60%
交通手段 福井鉄道福武線 水落 4分
容積率 200%
現況 更地
地目 宅地
引渡日 相談
地勢 -
国土法 -
土地権利 所有権
開発許可 -
間口・接道 東 : 間口38.7m、道路幅員15m 西 : 間口38.7m、道路幅員5.4m
私道負担 無し
備考 -
設備・機能 上水道引込み済 、 下水道引込み済 、 側溝 、 ガス(個別プロパン)
条件 現状渡し 、 分割可
位置 -
工法・構造・仕様 -
調査・保証・保険 -
法令上の制限 法22条区域
その他 上下水道引き込み有り/南西側の一部が土砂災害警戒区域(イエローゾーン)に該当/令和7年8月31日まで賃貸中。
周辺地図を確認する

icon_mailお問い合わせ

会社名 (株)西陣
所在地 〒913-0048
福井県坂井市三国町緑ケ丘4-15-35
免許番号 福井県知事免許(9)第908号
FAX 0776-82-7282
営業時間 9:00~18:00
定休日 日・祭・祝日、第2・4土曜日

pagetop