TOP >  売土地 - 条件から検索 >  物件一覧 >  坂井市春江町境上町 春江町境上町 売土地 98.17坪

売土地 坂井市春江町境上町 春江町境上町 売土地 98.17坪

POINT
駅や⼩学校、商業施設が徒歩圏内 利便性の良い住環境 98.17坪
管理番号 0346-003206
所在地 坂井市春江町境上町 2-3 (MAP
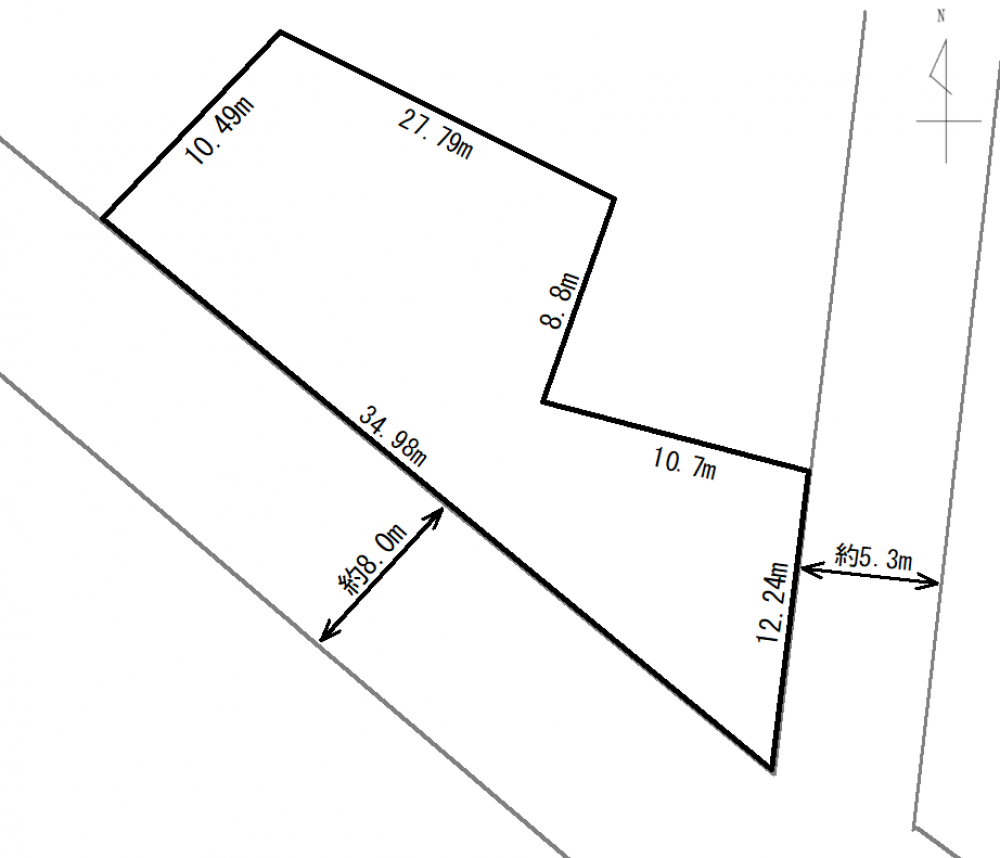
土地面積 324.56㎡(98.18坪)
  • 上水道
  • 下水道
  • 側溝
  • 角地
  • 南道路
  • 閑静な住宅街
  • 分割可
  • 建築条件付
  • 整形地
  • 更地
価格 14,727,000

※所得税、固定資産税、登記費用、保険料等は含まれておりません

私道負担(年額) -
仲介手数料(税込) 551,991
初期費用合計 551,991
都市計画区域 非線引き都市計画区域
取引態様 仲介
用途地域 準工業地域
学校区 春江小学校 / 春江中学校
建ぺい率 60%
交通手段 ハピラインふくい線 春江 5分
容積率 200%
現況 更地
地目 宅地
引渡日 相談
地勢 -
国土法 -
土地権利 所有権
開発許可 -
間口・接道 東 : 間口12.2m、道路幅員5.3m 南西 : 間口34.9m、道路幅員8m
私道負担 無し
備考 現況更地/分筆相談可/敷地内に電柱とカーブミラーあり
設備・機能 上水道引込み済 、 下水道引込み済 、 側溝
条件 現状渡し 、 分割可
位置 角地
工法・構造・仕様 -
調査・保証・保険 -
法令上の制限 法22条区域
その他 -
周辺地図を確認する

icon_mailお問い合わせ

会社名 (株)西陣
所在地 〒913-0048
福井県坂井市三国町緑ケ丘4-15-35
免許番号 福井県知事免許(9)第908号
FAX 0776-82-7282
営業時間 9:00~18:00
定休日 日・祭・祝日、第2・4土曜日

pagetop