アパマン・貸家
鯖江市新横江1丁目 「クレードル新横江」B棟105号は、ハピラインふくい鯖江駅近くの角部屋3DKのお部屋です 105号室
POINT
- ハピラインふくい(旧JR)鯖江駅・文化施設・スーパー・コンビニが徒歩圏内!
※軽量鉄骨造の建物構造上、部屋・共用部の振動音があります
| 管理番号 |
0251-001309
|
| 所在地 |
鯖江市新横江1丁目 1-11 24時間スーパー徒歩圏内
(MAP)
|
| タイプ |
3DK |
| 階数 / 階建 |
1階
/ 2階建
|
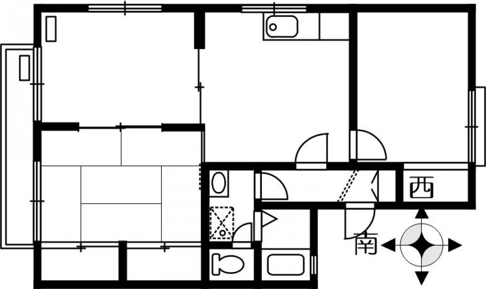
| 間取り |
[1階] 和室6帖、洋室6帖、洋室6帖、DK8帖、バス・トイレ独立 |
| 駐車場 |
1台込 |
- バス・トイレ別
- 温水洗浄便座
- オートロック
- インターホン(モニタ付含む)
- 宅配ボックス
- インターネット無料
- エアコン
- エレベーター
- 2階以上
- ペット相談
|
賃料
|
55,000円 |
|
共益費
|
0円 |
|
駐車料
|
0円 /
-台
|
|
町費
|
800円 |
| 毎月のお支払い |
55,800円 |
| 敷金 |
55,000円 |
|
礼金
|
0円 |
| 駐車場敷金 |
0円 |
|
火災保険料
(2年間)
|
26,000円 |
| 仲介手数料(税込) |
60,500円 |
| 初期費用合計 |
141,500円 |
| 契約方法 |
普通借家 |
| 取引態様 |
仲介 |
| 構造 |
軽量鉄骨造 |
| 学校区 |
鯖江東小学校 / 鯖江中学校 |
| 竣工年月日 |
1994年築 |
| 交通手段 |
ハピラインふくい線 鯖江 10分 |
| 専有面積 |
57.56㎡(17.41坪)
|
| 現況 |
空
|
| 窓の向き |
西
、 南
、 北
|
| 入居可能日 |
即入居可 |
| 契約期間 |
2
年間
|
| |
|
| 備考 |
※間取り図と相違がある場合、現況優先となります
※火災保険料等についてはご提案させていただきます(他コースあります)
※CATV基本料金は家賃に含みます
※家賃は前払いとなります
※物件情報最終更新日は(2025-12-12)です
内覧ご希望のお客様はお電話またはメールにて事前にお問合せご連絡をお願いいたします |
| TV・通信 |
CATV
|
| キッチン設備 |
-
|
| バス・トイレ・洗面 |
浴室乾燥機
、
シャンプードレッサー
、
室内洗濯機置場
、
温水洗浄便座
、
暖房便座
|
| 家具・家電・照明 |
照明器具
|
| 収納 |
-
|
| 設備・機能 |
電気
、
上水道
、
下水道
、
フローリング
、
駐輪場
、
トランクルーム
|
| 駐車場 |
-
|
| 給湯 |
ガス給湯器
|
| 冷暖房 |
冷暖房エアコン
|
| 条件 |
-
|
| バルコニー・庭 |
バルコニー
|
| 位置 |
角部屋
|
| セキュリティ |
防犯対応キー
、
インターホン
|
| 工法・構造・仕様 |
-
|
| 調査・保証・保険 |
-
|
| リフォーム・リノベーション |
-
|
| その他 |
・浴室乾燥機付き ・8帖のダイニングキッチン ・駐輪場3箇所あり |
周辺地図を確認する