アパマン・貸家
福井市勝見3丁目 リージェンシークラブ
POINT
- お手頃家賃です!駐車場は近隣に1台5,000円で空きが有ります。屋内駐車場希望の場合3,000 円UPです。
| 管理番号 |
0031-004027
|
| 所在地 |
福井市勝見3丁目 15
(MAP)
|
| タイプ |
2DK |
| 階数 / 階建 |
2階
/ 4階建
|
| 間取り |
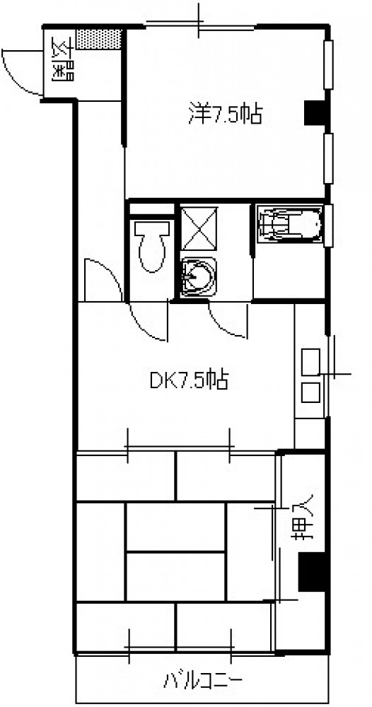
[2階] 洋室7.5帖、和室8帖、DK7.5帖、バス・トイレ独立 |
| 駐車場 |
近隣にあり(別契約) |
- バス・トイレ別
- 温水洗浄便座
- オートロック
- インターホン(モニタ付含む)
- 宅配ボックス
- インターネット無料
- エアコン
- エレベーター
- 2階以上
- ペット相談
|
賃料
|
40,000円 |
|
共益費
|
0円 |
|
駐車料
|
0円 /
-台
|
|
月額保証料
|
800円 |
| 毎月のお支払い |
40,800円 |
| 敷金 |
40,000円 |
|
礼金
|
0円 |
| 駐車場敷金 |
0円 |
|
火災保険料
(2年間)
|
25,000円 |
| 仲介手数料(税込) |
44,000円 |
|
初回保証料
|
16,000円 |
| 初期費用合計 |
125,000円 |
| 契約方法 |
普通借家 |
| 取引態様 |
仲介 |
| 構造 |
重量鉄骨造 |
| 学校区 |
旭小学校 / 成和中学校 |
| 竣工年月日 |
1985年5月築 |
| 交通手段 |
JR北陸本線 福井 17分 |
| 専有面積 |
51.69㎡(15.64坪)
|
| 現況 |
空
|
| 窓の向き |
東
、 南
、 北
|
| 入居可能日 |
即入居可 |
| 契約期間 |
2
年間
|
| |
|
| 備考 |
[退去時費用]ルームクリーニング費:44000円、エアコンクリーニング:26400円、精算業務手数料:5500円 ※故意・過失等別途実費 原状回復費;実費精算 [短期解約違約金]1年未満の解約は賃料の2ヶ月分、1年以上2年未満の解約は賃料の1ヶ月分 [法人契約の場合]敷金3ヶ月、礼金1ヶ月 |
| TV・通信 |
-
|
| キッチン設備 |
-
|
| バス・トイレ・洗面 |
室内洗濯機置場
|
| 家具・家電・照明 |
照明器具
|
| 収納 |
-
|
| 設備・機能 |
電気
、
上水道
、
下水道
|
| 駐車場 |
-
|
| 給湯 |
ガス給湯器
|
| 冷暖房 |
冷暖房エアコン
|
| 条件 |
-
|
| バルコニー・庭 |
-
|
| 位置 |
角部屋
|
| セキュリティ |
防犯対応キー
|
| 工法・構造・仕様 |
-
|
| 調査・保証・保険 |
-
|
| リフォーム・リノベーション |
-
|
| その他 |
保証会社+連帯保証人の場合、初回保証料40% (最低保証料16000円)、連帯保証人無しの場合、初回保証料50% (最低保証料20000円)、月額保証料800円、口座振替手数料440円 |
周辺地図を確認する