| 管理番号 | 03510-003075 |
|---|---|
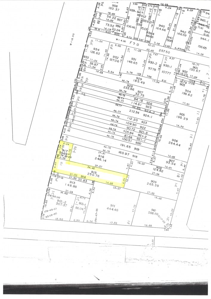
| 所在地 | 福井市町屋3丁目 21-10 (MAP) |
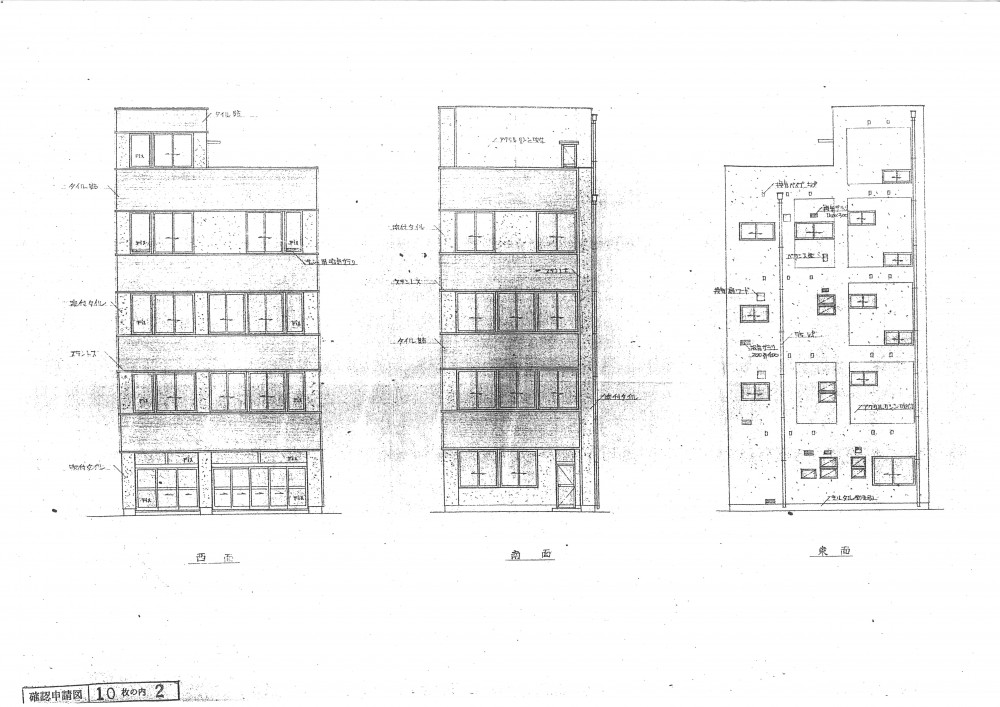
| 間取り | [1階] 店舗 [2階] 事務所 [3階] 事務所 [4階] 2DK [5階] 倉庫 |
|---|---|
| 土地面積 | 310.45㎡(93.91坪) |
| 建物延床面積 | 222.51㎡(67.31坪) |
| 価格 | 38,800,000円 |
|---|
※所得税、固定資産税、登記費用、保険料等は含まれておりません
| 私道負担(年額) | -円 |
|---|---|
| 仲介手数料(税込) | 1,346,400円 |
| 初期費用合計 | 1,346,400円 |
| 土地権利 |
所有権
|
|---|---|
| 取引態様 | 仲介 |
| 都市計画区域 | 市街化区域 |
| 学校区 | 松本小学校 / 進明中学校 |
| 用途地域 | 準工業地域 |
| 交通手段 | えちぜん鉄道三国芦原線 まつもと町屋 8分 |
| 建ぺい率 | 60% |
| 構造 | 鉄筋コンクリート造 |
| 容積率 | 200% |
| 駐車場 | -台 |
| 地目 | 宅地 |
| 現況 | 建物有り |
| 地勢 | 平坦 |
| 入居可能日 | 相談 |
| 竣工年月日 | 1980年築 |
| 私道負担 | 無し |
| 間口・接道 | 西 : 間口14m、道路幅員21m |
| 備考 | 本物件は三者(915番土地/個人所有・917番土地/法人所有・917番建物/個人所有)が所有する土地建物を一括して売買を行うことになります。よって、売買契約は三者(915番土地/売買価格16,800,000円・917番土地/売買価格4,000,000円・917番建物<税込>18,000,000円)との契約締結となるため、仲介手数料は合計1,424,400円(※注意)必要となります。 |
| TV・通信 | - |
|---|---|
| キッチン設備 | ガスコンロ可 |
| バス・トイレ・洗面 | 手洗器 、 温水洗浄便座 、 トイレ |
| 家具・家電・照明 | 照明器具 |
| 収納 | 収納スペース |
| 設備・機能 | 電気 、 上水道 、 下水道 、 ガス(都市) |
| 駐車場 | - |
| 給湯 | ガス給湯器 |
| 冷暖房 | エアコン2台以上 |
| 条件 | 現状渡し |
| バルコニー・庭 | - |
| 位置 | ロードサイド |
| セキュリティ | モニター付インターホン |
| 工法・構造・仕様 | - |
| 調査・保証・保険 | - |
| 法令上の制限 | 法22条区域 |
| 状況 | - |
| リフォーム・リノベーション | - |
| 用途 | 事務所 、 店舗 、 倉庫 |
| 重飲食を含む飲食店 | - |
| 軽飲食(カフェ・喫茶店など) | - |
| バー・クラブ・スナックなど | - |
| その他飲食店 | - |
| 美容・健康・介護 | - |
| 小売・物販 | - |
| アミューズメント | - |
| 塾・スクール | 塾・スクール |
| その他 | - |
| その他 | 4階の浴室は使用できません。 |
| 会社名 | 有限会社 友豊 |
|---|---|
| 所在地 | 〒918-8003 福井県福井市毛矢2丁目1番2号 |
| 免許番号 | 福井県知事免許(5)1357号 |
| FAX | 0776-34-5005 |
| 営業時間 | 平 日 09:00~18:00 土曜日 09:00~17:00 ※2月21日から4月20日は日曜日・祝日も営業します。 |
| 定休日 | 毎週日曜日、祝日 (GW・お盆・正月) |





























